Kiemelt
Kultúra/Oktatás

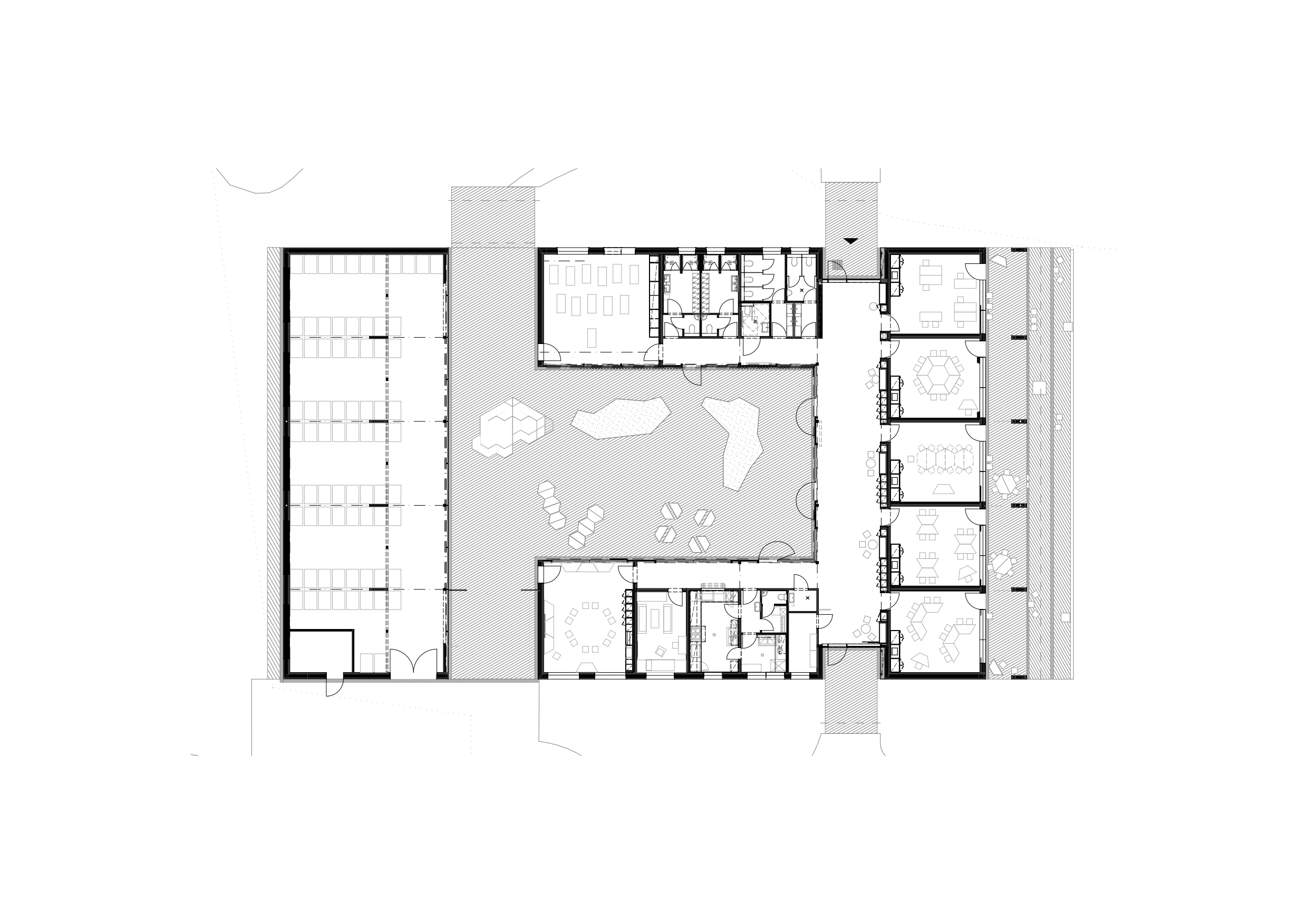
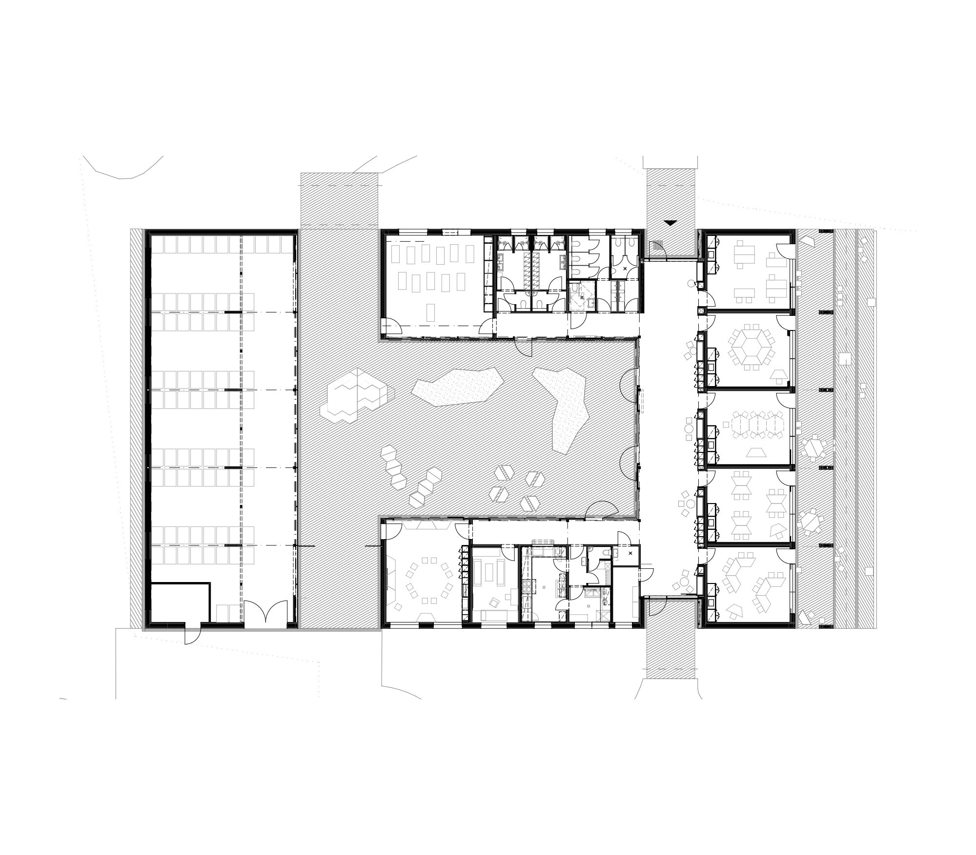
Iskolaépület Nagymaroson

Tervezés éve
2025
Bruttó szintterület
1026m2
Vezető tervező
Hartvig Lajos DLA
Projektvezető
Székely Ágnes, Szekeres Attila
Tervező építészek
Fülöp Eszter, Hágen Kata, Kővári Csenge, Szabó Péter
Kivitelező
Hello Wood
Pedagógiai szakmai szempontok képviselete
Budapest School
Beruházó
Thelema Kft.
Látványterv
Csabai Bence

A Budapest School költözik majd abba az iskolaépületbe, amit a Nagymarosra tervezett irodánk.

A megbízóval, illetve az épületet bérlő és használó iskolával egyetértésben, majd a kivitelezést végző Hello Wooddal közösen gondolkodva olyan épületet hozunk létre, mely a lehető legkisebb lábnyomot hagyja maga után, anyaghasználata és kialakítása révén pedig jótékony hatással van az emberi szerveztre – így maga az épület is hozzájárul az iskolás gyerekek fejlődéséhez.

A ház három alapanyagot tartalmaz jelentős mértékben: fát, polikarbonátot és acélt.

Az épületfából készült, előregyártott CLT szerkezetek használata minimálisra csökkenti az építési hulladékot, egy esetleges bontást követően pedig akár komposztálható is. A polikarbonát utólagosan szintén újrahasznosítható, szükség esetén átszabható. Acélt pedig olyan szerkezetekben alkalmazunk, amelyek fával nem, vagy csak jelentős kompromisszumok árán válthatók ki.

Az iskola talajcsavarokon fog állni, aminek eredményeként az alapozáshoz sincs szükség betonra az épületben.

Az alaprajzi kialakításnak köszönhetően az épület bővíthető lesz, így a jövőbeni esetleges létszámnövekedést is képes lesz kielégíteni.

 

Galéria